高い技術力ある大工だからこそ家を建てるのも直すのも安心して任せる事の出来る|ながら・加藤建築|豊橋・豊川・田原・新城・蒲郡・湖西・浜松
お気軽にお問い合わせください。0532-88-1611受付時間 9:00-18:00 [ 土・日・祝日除く ]
/
現場です。 天井が貼れ、壁下地、桧の無垢のフローリングを貼り出しました。 壁下地・・・桧の下地こんな工法をするのは、在来工法でも少なくなってきました。…
今日は少し大変な一日でした! 以前から、お願いされていた、井戸を使っていた所を、市水に切り替える工事、 水道屋さんと一緒に作業・・・ 数十年前、お客さ…
8月の終わりに、防草シート、砕石ををひいた現場が完成しました。 このような工事も棟梁が手配して、3業者の方にお願いしているんです。 協力業者の皆さんが…
台風9,10号で被害を受けられた方々にお見舞い申し上げます。 九州沿岸を通過したにかかわらず、少しだけ棟梁の所にも被害が出ました。 この一枚だけで、す…
前回もお伝えしましたが、2階建てには階段が必要です。 その階段なんですが、棟梁は、無垢材にしたいと思って作っています。 親父に言われた事は、その家にあ…
現場では、外回り、床が出来て、2階から天井を貼っています。 階段上の天井 中ローカ 寝室の天井 断熱材もきちんと入っているので、安心です。 杉の木のい…
今日から、9月・・・一日参り 自宅の、神棚、仏壇、地の神様のお参りが終わり、地元の氏神様にお参りに行って来ました。 御神木 朝7時、いつも誰も居ません…
最近の、新築の現場の屋根は、立平葺き(板金工事)や、カラーベスト工法、 平板瓦、和型などありますが、棟梁は後者のどちらかで施工しています。 今回の家は…
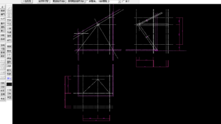
最近、2階建てのお宅の階段を作るうえで、JWCADで詳細図を書くようにしています。 この図面を元に、材料出し、加工を作業場でして行きます。 最近では、…
一階の床組み同様に、二階も根太組です。 根太が組み合わると針葉樹合板で下張りします。 以前は普通だった工法も、すたれつつありますが、この工法が一番なん…
ブログ検索はコチラをお使いください